Wójt Gminy Kaliska ogłasza przetarg na zbycie nieruchomości gruntowych
Data publikacji: 2022-05-20,
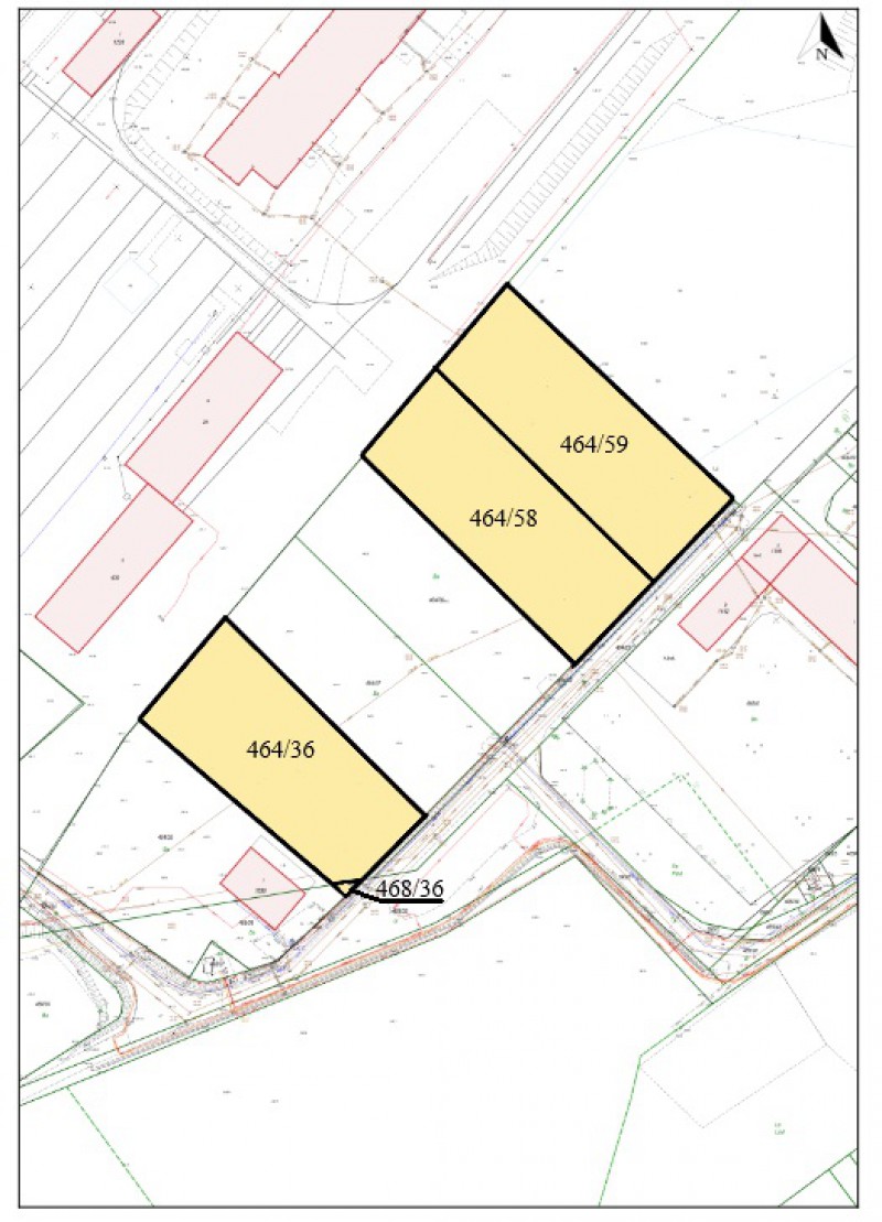
Wójt Gminy Kaliska ogłasza przetarg na zbycie nieruchomości gruntowych w Kaliskach. Przetarg odbędzie się 06 lipca 2022 r. o godz. 14:00. w Urzędzie Gminy Kaliska w sali narad.