Accessibility
UE

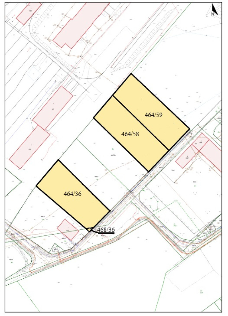
Wójt Gminy Kaliska ogłasza przetarg na zbycie nieruchomości gruntowych pod inwestycję przemysłową w Kaliskach

Wójt Gminy Kaliska ogłasza przetarg na zbycie nieruchomości gruntowych pod inwestycję przemysłową w Kaliskach. Przetarg odbędzie się 10.04.2024 roku o godz. 14.00 w Urzędzie Gminy Kaliska ul. Nowowiejska 2 w sali narad.

 

Ogloszenie o II przetargu ustnym nieograniczonym-kop.pdf

/media/pliki/wnioski/zalacznik-nr-1.docx

/media/pliki/ogloszenia/zalacznik-nr-2.docx